Электрический котел 25 кВт Комфорт
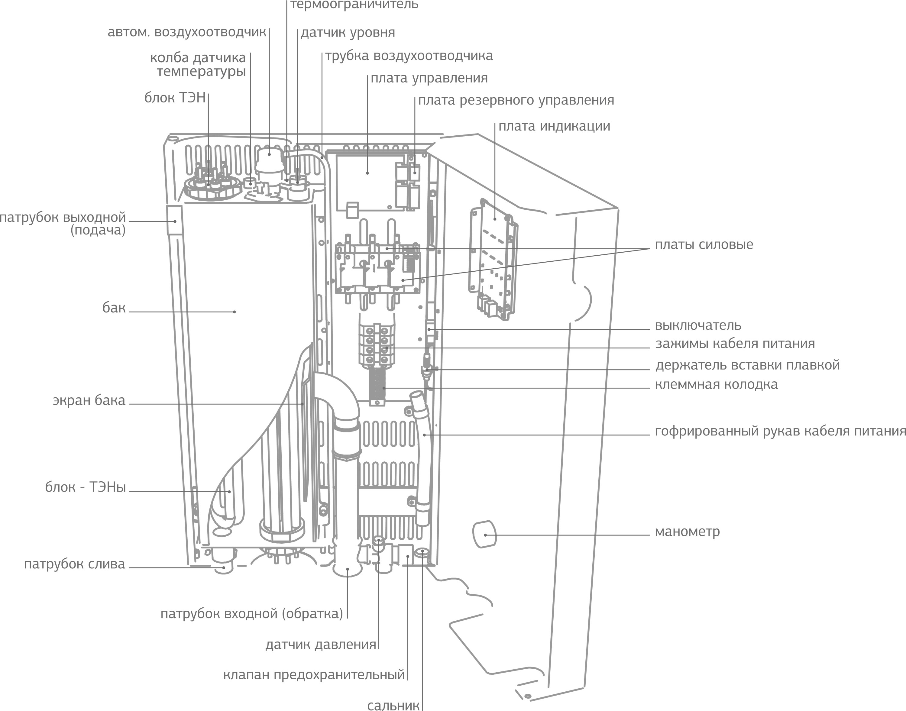
Электрический котел 25 кВт модели Комфорт идеально подходит для автономного отопления загородных домов, коттеджей, бань, детских садов и других видов помещений. Удобный в использовании и легко подключаемый, электрокотел 25 кВт уже содержит в себе элементы группы безопасности: предохранительный клапан, воздухоотводчик, манометр. Снабжен цифровым терморегулятором с дисплеем, микропроцессорным управлением с ПИ-регулированием и датчиком комнатной температуры.
Предусмотрена возможность для подключения погодозависимого контроллера и GSM-управления. Данный электрокотел мощностью 25 кВт станет надёжным источником тепла в Вашем доме.
Гарантия производителя 24 месяцев
Сертификат соответствия Таможенного союза


